
|
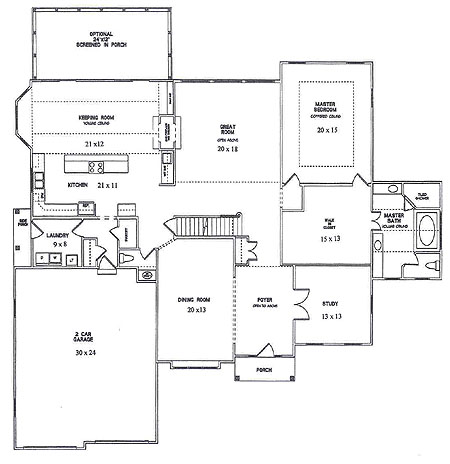
4 or 5 Bedrooms, 3 1/2 Baths 1st Floor Master Bedroom |
![]() |
|
Great Room 20'0" x 18'0" Keeping Room 21'0" x 12'0" Dining Room 20'0" x 13'0" Kitchen 21'0" x 11'0" Study 13'0" x 13'0" Master Bedroom 20'0" x 15'0" Walk-In Closet 15'0" x 13'0" 2 Car Garage 30'0" x 24'0" Additional Spaces Master Bathroom Laundry Room Powder Room Pantry Optional Screened-In Porch |
|
Bedroom #2 15'0" x 15'0" Bedroom #3 15'0" x 15'0" Bedroom #4 18'0" x 13'0" Optional Media Room/Exercise Room 21'0" x 13'0" Additional Spaces Balcony 2/3 Bathrooms Laundry |
If you would like more information about new home construction, please click here.
Communities |
Company Information |
Quick Deliveries
Custom Homes |
Philadelphia Region |
Contact Us |
Home