|
Anthony Builders, Inc. -
"Custom Home Builders" New Home Construction - European Contemporary Design Serving Bethlehem and the Lehigh Valley of Pennsylvania |
|
|
PEN ARGYL SCHOOL DISTRICT Call Donna Rose at 610-730-7363 for sales info or click here to inquire. |
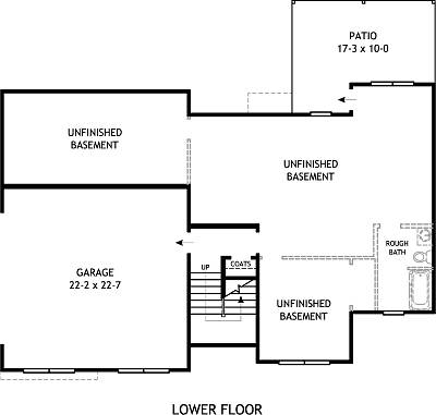
The Hawthorne - Spec Home Now Available! - Quick Delivery



Directions: From RT 22 & 33 follow Rt 33 North to Rt 512 Wind Gap exit, at the end of the ramp bear right onto Rt 512 North, follow 512 North to a left on Center street, follow Center street to a right on Roosevelt Street, continue to a left on Janson Terrace and JANSON WOODS
Anthony Builders, Incorporated
434 Clearfield Street
Freemansburg, PA 18017
610-865-9314